






- 交 通
-
Osaka Metro 千日前線「野田阪神」駅歩7分
阪神電鉄本線「野田」駅歩9分
JR東西線「海老江」駅歩11分
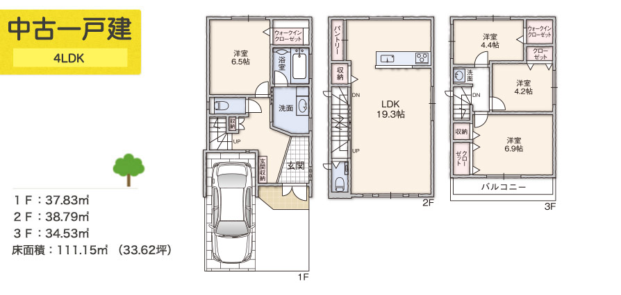
- 販売戸数
- 1戸
- 有効土地面積
- 約71.70㎡(約21.68坪)※私道負担10.5㎡
- 地 目
- 宅地
- 区 分
- 市街化区域
- 用途地域
- 第二種住居地域、準防火地域
- 建ぺい率
- 80%
- 容積率
- 300%
- 構造
- 木造スレート葺3階建
- 建築年月
- 平成30年3月完成
- 取引態様
- 仲介
- 大開幼稚園
- 徒歩5分(約400m)
- 大開小学校
- 徒歩2分(約160m)
- ライフ野田店
- 徒歩4分(約320m)
- 万代福島吉野店
- 徒歩8分(約640m)
- フジタ病院
- 徒歩8分(約640m)
- スギドラッグ
- 徒歩10分(約800m)
- 大阪大開郵便局
- 徒歩7分(約560m)
- 大開公園
- 徒歩5分(約400m)
- 吉野ちとせ保育園
- 徒歩5分(約400m)
- 野田中学校
- 徒歩11分(約880m)
- ウイステ
- 徒歩11分(約880m)
- ヤマダデンキ
- 徒歩8分(約640m)
- えびえ記念病院
- 徒歩12分(約960m)
- 福島区役所
- 徒歩3分(約240m)
- 三井住友銀行西野田支店
- 徒歩9分(約720m)
- 吉野町公園
- 徒歩4分(約320m)

















